新築一戸建て
名取市愛島台3丁目
物件情報
| 所在地 | 宮城県名取市愛島台3丁目 |
|---|---|
| 交通 | 【JR東北本線】館腰駅 徒歩84分 名取市コミュニティバス 9分 愛島台6丁目西 徒歩3分 【JR東北本線】名取駅 徒歩110分 名取市コミュニティバス 20分 愛島台6丁目西 徒歩3分 |
| 物件種目 | 新築一戸建て |
| 価格 | 2,980万円 |
|---|
| バス・トイレ | 浴室乾燥機、追焚機能、シャワー付洗面化粧台、温水洗浄便座、トイレ2ヶ所 |
|---|---|
| キッチン | カウンターキッチン、システムキッチン、食器洗浄乾燥機、IHクッキングヒーター |
| 設備・サービス | ウォークインクローゼット、シューズインクローゼット、クローゼット、モニター付インターホン、ディンプルキー、ダブルロックドア、省エネ給湯器、室内物干し、上水道、下水道、電気、庭、ルーフバルコニー、人感センサー付照明、ダウンライト、照明器具、火災警報器(報知機)、複層ガラス、Low-E ガラス |
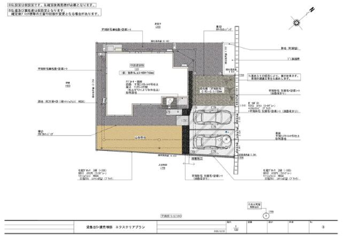
| 備考 | バルコニー:3m² 主要採光面:南東向き 施工会社:東和総合住宅株式会社 設備保証付 新築時・増改築時の設計図書あり、BELS/省エネ基準適合認定 ※ご成約の際は、売主指定の業者仲介による契約となります |
| 建物名 | 愛島台S+建売 |
|---|---|
| 間取り | 4LDK |
| 建築面積 | 107.41m² |
| 土地面積 | 226.06m² |
| 私道負担面積 | なし |
| 築年月 | 2026年5月 |
| 階建 / 階 | 2階建 |
| 駐車場 | 有 |
| 坪数・坪単価 | 68.38坪 |
| 建物構造 | 木造 |
| 土地権利 | 所有権 |
| 都市計画 | 市街化区域 |
| 用途地域 | 1種低層 |
| 接道状況 | 北東 6.0m 公道 接面9.8m |
| 建ぺい率 | 40% |
| 容積率 | 60% |
| 地目 | 宅地 |
| 地勢 | 平坦 |
| 国土法届出 | - |
| セットバック | - |
| 建築確認番号 | 第R07確認建築宮城建住01912号 |
| 現況 | 建築中 |
| 引渡可能時期 | 2026年5月下旬予定 |
|---|---|
| 取引態様 | 売主 |
| 情報公開日 | 2026年02月24日 |
| 次回更新予定日 | 2026年03月30日 |
アピールポイント
閑静な住宅街の住戸、更に眼下を見渡せるルーフバルコニー付なので、アウトドア家具のチョイスでカントリー風も南国風も思いのまま。また手つかずの新築で、その上高気密高断熱住宅なので、確かな施工がエコレベルを上げています。ちなみに10坪以上の庭のある住まいです。家族というコミュニティを支える4LDK。実際の空間をご自身で体感ください。